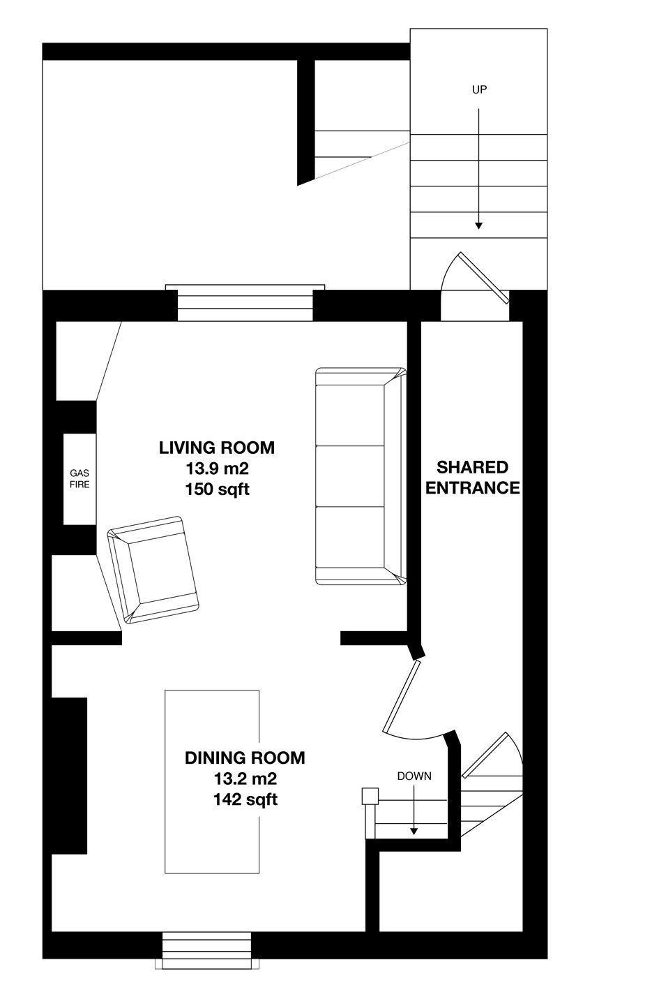
The flat is unusually spacious for the area, with an open plan sitting room and dining room, a separate kitchen in the rear addition leading to a particularly large private and safe garden.

The bedrooms and bathroom are downstairs, and the whole house receives great light throughout the day.

Total House: 76m2 (818 sqft)
Garden: 72m2 (775 sqft)


GROUND FLOOR


FIRST FLOOR